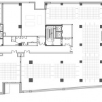
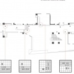
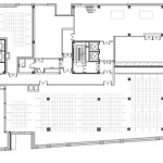
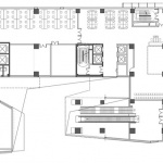
Changsha Urban Construction Information Center by CMIE LUO JIN STUDIOInheriting the legacy, building a new city 2026-03-12 Project SpecsDesign:CMIE LUO JIN STUDIOLocation: China Type: Architecture Materials: Ceramic terracotta boards Metal Metal panel Aluminum sheet Concrete Glass Tags: Hunan Changsha Category: Pubilc Architecture Culture Center Culture Architecture Archive Administrative Center 版权️©谷德设计网gooood.cn,禁止以gooood编辑版本进行任何形式转载Copyright©goooodClick to contact with the designer/authorCMIE LUO JIN STUDIOChinaRecommended Jobs Submit a JobAll Jobs »Latest Jobs Submit a JobAll Jobs » Post a Comment You need to login to post comment Social LoginPreviousORIGEN Offices by X arquitectosORIGEN Offices by X arquitectosNextM Café by UAO DesignM Café by UAO DesignLatestThe EUmies Awards Days 2026 celebrate the best of European architecture in Barcelona with a programme focused on reuse and transformationThe EUmies Awards Days 2026 celebrate the best of European architecture in Barcelona with a programme focused on reuse and transformation Random Jobs Submit your jobAll jobs »Jobs Post positions» Sort by districtsAll|Northern China|Middle China|Southern China