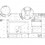
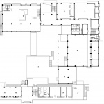
Anqing Riverside ECD Oil Tank Eco-Cultural District by Anhui LANE LAND Design and Planning Design Co.,LTDThe Transformation from an “Industrial Enclave” to a “Civic Living Room” 2025-12-12 Project SpecsDesign:Anhui LANE LAND Design and Planning Design Co.,LTDLocation: China Type: Architecture Materials: Steel plate Concrete Glass Tags: Anhui Renovation Category: Culture Center Culture Architecture Activity center 版权️©谷德设计网gooood.cn,禁止以gooood编辑版本进行任何形式转载Copyright©goooodRecommended Jobs Submit a JobAll Jobs »Latest Jobs Submit a JobAll Jobs » Post a Comment You need to login to post comment Social LoginPreviousCHJ Plaza in Shantou by gmpCHJ Plaza in Shantou by gmpNextMENGKA Cafe by Slow Coral DesignMENGKA Cafe by Slow Coral DesignLatestThe Opening Forum of HalfStage Vol. 5 “One River, Two Names”The Opening Forum of HalfStage Vol. 5 “One River, Two Names” Random Jobs Submit your jobAll jobs »Jobs Post positions» Sort by districtsAll|Northern China|Middle China|Southern China