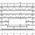
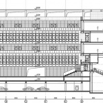
国家网络安全人才与创新基地培训中心|信息综合楼(创新中心),湖北武汉 / 中信设计孔明锁结构下的立体开放实验建筑 2026-04-29 项目标签设计公司:中信设计位置: 中国 类型: 建筑 材料: 石材 金属 铝板 金属线网 钢筋混凝土 玻璃 钢结构体系 标签: 武汉 湖北 分类: 公共职能建筑 办公建筑 园区 培训机构 实验室 教育建筑 版权️©谷德设计网gooood.cn,禁止以gooood编辑版本进行任何形式转载Copyright©gooood点击联系该项目/文章的创作/分享者中信设计中国推荐工作 提交新工作所有工作 »最新工作 提交新工作所有工作 » 发表评论 您需要登录 以发表评论。 社交登录旧一篇1101室,日本 / FORM/Kouichi Kimura Architects1101室,日本 / FORM/Kouichi Kimura Architects新一篇财富支点,成都 / 中国建筑西南设计研究院有限公司 + NBBJ财富支点,成都 / 中国建筑西南设计研究院有限公司 + NBBJ最新春山秋水咖啡厅,江西上饶 / 蜚声设计春山秋水咖啡厅,江西上饶 / 蜚声设计 随机推荐工作 提交工作所有工作 »最新工作 购买招聘» 按地区查看全部|北方|长江|华南