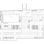
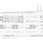
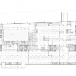
Shanghai Midea Global Innovation Park by Atelier MA - BIAD + Shanghai TIANHUA Architecture Planning & Engineering Ltd.The Tech Park Above the Forest 2025-12-19 Project SpecsDesign:Shanghai TIANHUA Architecture Planning & Engineering Ltd.Beijing Institute of Architectural DesignLocation: China Type: Architecture Materials: Metal Aluminum sheet Steel Glass Tags: Shanghai Category: Office Office Building Courtyard Green Architecture 版权️©谷德设计网gooood.cn,禁止以gooood编辑版本进行任何形式转载Copyright©goooodClick to contact with the designer/authorShanghai TIANHUA Architecture Planning & Engineering Ltd.ChinaBeijing Institute of Architectural DesignChinaRecommended Jobs Submit a JobAll Jobs »Latest Jobs Submit a JobAll Jobs » Post a Comment You need to login to post comment Social LoginPreviousThe Pause of Meaning by Atelier JianThe Pause of Meaning by Atelier JianNextGoldreif Shanghai Experience Center by DEVOLUTIONGoldreif Shanghai Experience Center by DEVOLUTIONLatestStorage barn in Utriai by Architectural Bureau G.Natkevicius & PartnersStorage barn in Utriai by Architectural Bureau G.Natkevicius & Partners Random Jobs Submit your jobAll jobs »Jobs Post positions» Sort by districtsAll|Northern China|Middle China|Southern China