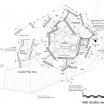
OND SAUNA by AMANE ARCHITECTSWalls of neutrality 2025-11-10 Project SpecsDesign:AMANE ARCHITECTSLocation: Japan Type: Architecture Materials: Wood Metal CLT Tags: Saga Category: Hospitality Cabins and Lodges Sauna 版权️©谷德设计网gooood.cn,禁止以gooood编辑版本进行任何形式转载Copyright©goooodClick to contact with the designer/authorAMANE ARCHITECTSJapanRecommended Jobs Submit a JobAll Jobs »Latest Jobs Submit a JobAll Jobs » Post a Comment You need to login to post comment Social LoginPreviousJOOLZ by Beyond SpaceJOOLZ by Beyond SpaceNextOAKV by AtelierCarleOAKV by AtelierCarleLatest2025 ASLA RESEARCH AWARD OF HONOR: Charles River Floating Wetland Pilot Project: Multi-Year Findings / Sasaki Associates, Inc. + The Hideo Sasaki Foundation + Dr. McNamara Rome2025 ASLA RESEARCH AWARD OF HONOR: Charles River Floating Wetland Pilot Project: Multi-Year Findings / Sasaki Associates, Inc. + The Hideo Sasaki Foundation + Dr. McNamara Rome Random Jobs Submit your jobAll jobs »Jobs Post positions» Sort by districtsAll|Northern China|Middle China|Southern China