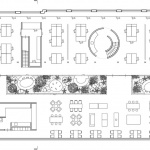
JOOLZ by Beyond Spacepositive design 2025-11-10 Project SpecsDesign:Beyond SpaceLocation: Netherlands Type: Architecture Materials: Wood Metal Plant Glass Tags: Renovation Amsterdam Category: Office Office Building Commercial Architecture 版权️©谷德设计网gooood.cn,禁止以gooood编辑版本进行任何形式转载Copyright©goooodClick to contact with the designer/authorBeyond SpaceNetherlandsRecommended Jobs Submit a JobAll Jobs »Latest Jobs Submit a JobAll Jobs » Post a Comment You need to login to post comment Social LoginPreviousOsmanthus by GTDOsmanthus by GTDNextOND SAUNA by AMANE ARCHITECTSOND SAUNA by AMANE ARCHITECTSLatest2025 ASLA RESEARCH AWARD OF HONOR: Charles River Floating Wetland Pilot Project: Multi-Year Findings / Sasaki Associates, Inc. + The Hideo Sasaki Foundation + Dr. McNamara Rome2025 ASLA RESEARCH AWARD OF HONOR: Charles River Floating Wetland Pilot Project: Multi-Year Findings / Sasaki Associates, Inc. + The Hideo Sasaki Foundation + Dr. McNamara Rome Random Jobs Submit your jobAll jobs »Jobs Post positions» Sort by districtsAll|Northern China|Middle China|Southern China