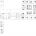
National Power Generation Equipment Mechanical Components Product Quality Supervision and Inspection Center by Sichuan Provincial Architectural Design and Research Institute CO., LTDSmall Site, High Capacity 2025-12-31 Project SpecsDesign:Sichuan Provincial Architectural Design and Research Institute CO., LTDLocation: China Type: Architecture Materials: Metal stainless steel Reinforced Concrete Glass Curtain Wall Tags: Sichuan Category: Pubilc Architecture Office Office Building Headquarters Institute 版权️©谷德设计网gooood.cn,禁止以gooood编辑版本进行任何形式转载Copyright©goooodClick to contact with the designer/authorSichuan Provincial Architectural Design and Research Institute CO., LTDChinaRecommended Jobs Submit a JobAll Jobs »Latest Jobs Submit a JobAll Jobs » Post a Comment You need to login to post comment Social LoginPreviousCain Lamarre by Sid Lee ArchitectureCain Lamarre by Sid Lee ArchitectureNextChengdu Luxiao Station TOD Area A Plot Three by Sichuan Architectural Design & Research Institute Co., LtdChengdu Luxiao Station TOD Area A Plot Three by Sichuan Architectural Design & Research Institute Co., LtdLatestInternational Solicitation Announcement for the Functional Planning and Design Scheme of Xixing Old Street Historical and Cultural BlockInternational Solicitation Announcement for the Functional Planning and Design Scheme of Xixing Old Street Historical and Cultural Block Random Jobs Submit your jobAll jobs »Jobs Post positions» Sort by districtsAll|Northern China|Middle China|Southern China