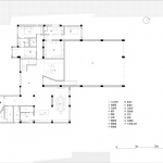
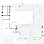
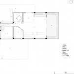
Blue Roof Artist Studio Renovation by REL ARCHITECTSReshaping the Symbiotic Relationship Between Home and Art Through Minimalism 2026-01-14 Project SpecsDesign:REL ARCHITECTSLocation: China Type: Architecture Materials: Polycarbonate Panel Steel plate Faced concrete Glass Tags: Sichuan Chengdu Renovation Category: Residential Architecture Studio Art studio Art space 版权️©谷德设计网gooood.cn,禁止以gooood编辑版本进行任何形式转载Copyright©goooodClick to contact with the designer/authorREL ARCHITECTSRecommended Jobs Submit a JobAll Jobs »Latest Jobs Submit a JobAll Jobs » Post a Comment You need to login to post comment Social LoginPreviousBRUIS by GROUP ABRUIS by GROUP ANextWinery project at Quinta de Adorigo by Atelier Sergio RebeloWinery project at Quinta de Adorigo by Atelier Sergio RebeloLatestMarconi-Lévinas school complex by Giovanni Maggioni + Mirko Noris + Valerio TolveMarconi-Lévinas school complex by Giovanni Maggioni + Mirko Noris + Valerio Tolve Random Jobs Submit your jobAll jobs »Jobs Post positions» Sort by districtsAll|Northern China|Middle China|Southern China