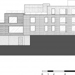
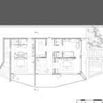
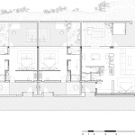
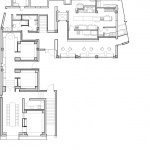
ZOLAND·Emei by Studio J. BridglandA Mountain Retreat in Harmony with Nature 2025-12-24 Project SpecsDesign:Studio J. BridglandLocation: China Type: Architecture Materials: Washed-stone Stone Wood tiles Concrete Tags: Sichuan Interior Design Emeishan Category: Hospitality Resort Hotels 版权️©谷德设计网gooood.cn,禁止以gooood编辑版本进行任何形式转载Copyright©goooodClick to contact with the designer/authorStudio J. BridglandRecommended Jobs Submit a JobAll Jobs »Latest Jobs Submit a JobAll Jobs » Post a Comment You need to login to post comment Social LoginPreviousMulti-purpose hall in Châteaufor by Berellini ArchitecteMulti-purpose hall in Châteaufor by Berellini ArchitecteNextThe Chinese University of Hong Kong, Shenzhen, Phase II by Wang Weijen ArchitectureThe Chinese University of Hong Kong, Shenzhen, Phase II by Wang Weijen ArchitectureLatestWinery project at Quinta de Adorigo by Atelier Sergio RebeloWinery project at Quinta de Adorigo by Atelier Sergio Rebelo Random Jobs Submit your jobAll jobs »Jobs Post positions» Sort by districtsAll|Northern China|Middle China|Southern China