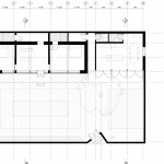
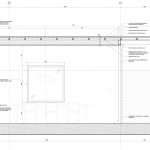
Z House by Y+Y Studiowhat you see is what you get 2025-11-05 Project SpecsDesign:Y+Y StudioLocation: China Type: Architecture Materials: Pebble Wood Metal Steel Brick Plant Windows Glass Tags: Beijing Interior Design Renovation Category: Residential interior design Residential Architecture 版权️©谷德设计网gooood.cn,禁止以gooood编辑版本进行任何形式转载Copyright©goooodClick to contact with the designer/authorY+Y StudioRecommended Jobs Submit a JobAll Jobs »Latest Jobs Submit a JobAll Jobs » Post a Comment You need to login to post comment Social LoginPreviousTianhan Grand Theater Cultural Center by Beijing Institute of Achitetural Design Co., Ltd.Tianhan Grand Theater Cultural Center by Beijing Institute of Achitetural Design Co., Ltd.NextCasa 1000 Fiori by Ceresa Grandis ArchitettiCasa 1000 Fiori by Ceresa Grandis ArchitettiLatestTassel Bridge, Pedestrian Bridge on the North Side of Nanqing Garden, Qingpu by Atelier Z+ & temp architectsTassel Bridge, Pedestrian Bridge on the North Side of Nanqing Garden, Qingpu by Atelier Z+ & temp architects Random Jobs Submit your jobAll jobs »Jobs Post positions» Sort by districtsAll|Northern China|Middle China|Southern China