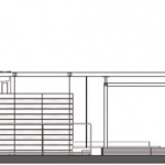
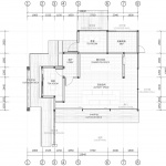
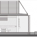
Yeeii Teahouse by vari architectsOrder and wildness, precision and rawness 2025-12-11 Project SpecsDesign:VARI DesignLocation: China Type: Architecture Materials: Metal Aluminum sheet Brick Glass Tags: Chongqing Category: Courtyard Tea House 版权️©谷德设计网gooood.cn,禁止以gooood编辑版本进行任何形式转载Copyright©goooodClick to contact with the designer/authorVARI DesignChinaRecommended Jobs Submit a JobAll Jobs »Latest Jobs Submit a JobAll Jobs » Post a Comment You need to login to post comment Social LoginPreviousForest Pavilion by ZAOZUO ARCHITECTURE STUDIOForest Pavilion by ZAOZUO ARCHITECTURE STUDIONextETERNAL SUNRISE by Brut DeluxeETERNAL SUNRISE by Brut DeluxeLatestMonologue _ The Monologue of a Timewalker by SOSOKKI ANAC / Gi-Tae ChungMonologue _ The Monologue of a Timewalker by SOSOKKI ANAC / Gi-Tae Chung Random Jobs Submit your jobAll jobs »Jobs Post positions» Sort by districtsAll|Northern China|Middle China|Southern China