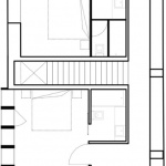
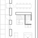
TerraSense Mountain Charm Retreat by Atelier DRKA Retreat Embedded in the Mountain Landscape 2026-03-21 Project SpecsDesign:Atelier DRK MainLocation: Portugal Type: Architecture Materials: Stone Wood Metal Concrete Glass Tags: Guarda Serra Estrela Category: Hospitality Residential Architecture Villa Commercial Architecture Hotels 版权️©谷德设计网gooood.cn,禁止以gooood编辑版本进行任何形式转载Copyright©goooodClick to contact with the designer/authorAtelier DRK MainPortugalRecommended Jobs Submit a JobAll Jobs »Latest Jobs Submit a JobAll Jobs » Post a Comment You need to login to post comment Social LoginPreviousAn Miên cafe by xưởng xépAn Miên cafe by xưởng xépNextCasa Conte by Messner ArchitectsCasa Conte by Messner ArchitectsLatest2025 ASLA GENERAL DESIGN AWARD OF HONOR: Waterloo Park / Michael Van Valkenburgh Associates, Inc.2025 ASLA GENERAL DESIGN AWARD OF HONOR: Waterloo Park / Michael Van Valkenburgh Associates, Inc. Random Jobs Submit your jobAll jobs »Jobs Post positions» Sort by districtsAll|Northern China|Middle China|Southern China