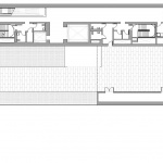
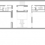
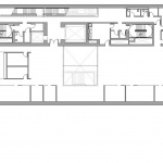
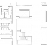
Studio Museum In Harlem by Adjaye AssociatesA Contemporary Art Museum Rooted in Community 2026-03-16 Project SpecsDesign:Adjaye AssociatesLocation: United States Type: Architecture Materials: Sandblasted Concrete Stone terrazzo Wood Concrete Glass Tags: New York Category: Museum Exhibition Exhibition Architecture Culture Architecture Art Museum 版权️©谷德设计网gooood.cn,禁止以gooood编辑版本进行任何形式转载Copyright©goooodClick to contact with the designer/authorAdjaye AssociatesRecommended Jobs Submit a JobAll Jobs »Latest Jobs Submit a JobAll Jobs » Post a Comment You need to login to post comment Social LoginPreviousPH Sierra Vertientes by Tenter EstudioPH Sierra Vertientes by Tenter EstudioNextYanlord The Park by TROP: terrains+open spaceYanlord The Park by TROP: terrains+open spaceLatestMarconi-Lévinas school complex by Giovanni Maggioni + Mirko Noris + Valerio TolveMarconi-Lévinas school complex by Giovanni Maggioni + Mirko Noris + Valerio Tolve Random Jobs Submit your jobAll jobs »Jobs Post positions» Sort by districtsAll|Northern China|Middle China|Southern China