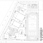
Redevelopment of Pingshan Elementary School into a Nine-Year Integrated School by CCDI DongXiYing Studio The Bridge as an Anchor of the Landscape 2026-04-17 Project SpecsDesign:Dongxiying StudioLocation: China Type: Architecture Materials: decorative-panels Metal Concrete Glass Tags: Guangdong Shenzhen Category: Middle School Elementary School Teaching Buildings Educational Architecture 版权️©谷德设计网gooood.cn,禁止以gooood编辑版本进行任何形式转载Copyright©goooodClick to contact with the designer/authorDongxiying StudioChinaRecommended Jobs Submit a JobAll Jobs »Latest Jobs Submit a JobAll Jobs » Post a Comment You need to login to post comment Social LoginPreviousResidential house Weert by De Nieuwe ContextResidential house Weert by De Nieuwe ContextNextQingdao Tangdao Bay Art Center by OI ArchitectsQingdao Tangdao Bay Art Center by OI ArchitectsLatestArena Under Bridge by Atelier XÜKArena Under Bridge by Atelier XÜK Random Jobs Submit your jobAll jobs »Jobs Post positions» Sort by districtsAll|Northern China|Middle China|Southern China