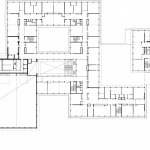
Sammontalo by NERVIN ArchitectureA Community Hub Bringing Together Education, Culture, and Everyday Life 2025-12-30 Project SpecsDesign:NERVIN ArchitectureLocation: Finland Type: Architecture Materials: Red bricks Wood Brick Tags: Timber structure Category: Gymnasium(Indoor Sports Facility) Education Center Educational Architecture Community Center 版权️©谷德设计网gooood.cn,禁止以gooood编辑版本进行任何形式转载Copyright©goooodClick to contact with the designer/authorNERVIN ArchitectureFinlandRecommended Jobs Submit a JobAll Jobs »Latest Jobs Submit a JobAll Jobs » Post a Comment You need to login to post comment Social LoginPreviousReview of the year – gooood’s Monthly Most Popular 36 Projects of 2025Review of the year – gooood’s Monthly Most Popular 36 Projects of 2025NextPorcelain Source Museum by Atelier DeshausPorcelain Source Museum by Atelier DeshausLatest2025 ASLA RESEARCH AWARD OF HONOR: Charles River Floating Wetland Pilot Project: Multi-Year Findings / Sasaki Associates, Inc. + The Hideo Sasaki Foundation + Dr. McNamara Rome2025 ASLA RESEARCH AWARD OF HONOR: Charles River Floating Wetland Pilot Project: Multi-Year Findings / Sasaki Associates, Inc. + The Hideo Sasaki Foundation + Dr. McNamara Rome Random Jobs Submit your jobAll jobs »Jobs Post positions» Sort by districtsAll|Northern China|Middle China|Southern China