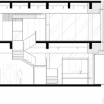
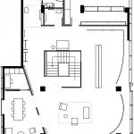
IOI BOUTIQUE by Jiangjie OfficeThe structural axis of spatial experience 2025-12-24 Project SpecsDesign:Wang Weijen ArchitectureJIANGJIE DESIGNLocation: China Type: Architecture Materials: Spray Teak Metal panel stainless steel Cement Tags: Interior Design Hangzhou Category: Commercial Architecture Store Fashion Store 版权️©谷德设计网gooood.cn,禁止以gooood编辑版本进行任何形式转载Copyright©goooodClick to contact with the designer/authorWang Weijen ArchitectureChinaJIANGJIE DESIGNChinaRecommended Jobs Submit a JobAll Jobs »Latest Jobs Submit a JobAll Jobs » Post a Comment You need to login to post comment Social LoginPreviousResident ZB004 by guò bàn erResident ZB004 by guò bàn erNextThe dark light by HBM DesignThe dark light by HBM DesignLatestZhuodikangqin Springs Hotel by Much Modest CollectZhuodikangqin Springs Hotel by Much Modest Collect Random Jobs Submit your jobAll jobs »Jobs Post positions» Sort by districtsAll|Northern China|Middle China|Southern China