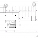
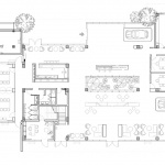
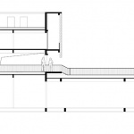
GoodGrid Automotive Headquarter by CHAOYU Architectural Design The AI Automotive in the fields. 2026-04-27 Project SpecsDesign:Chaoyu Architectural designLocation: China Type: Architecture Materials: Metal Metal panel perforated panel Aluminum sheet Concrete Glass Tags: Jiangsu Suzhou Category: Office Office Building Commercial Architecture Headquarters 版权️©谷德设计网gooood.cn,禁止以gooood编辑版本进行任何形式转载Copyright©goooodClick to contact with the designer/authorChaoyu Architectural designChinaRecommended Jobs Submit a JobAll Jobs »Latest Jobs Submit a JobAll Jobs » Post a Comment You need to login to post comment Social LoginPreviousLandscape Design of the First Opening Area of the Double Happiness Island Sports Cluster by Yudao StudioLandscape Design of the First Opening Area of the Double Happiness Island Sports Cluster by Yudao StudioNextSantai Stadium Renovation and Upgrade Project by China Southwest Architectural Design and Research Institute Corp.LtdSantai Stadium Renovation and Upgrade Project by China Southwest Architectural Design and Research Institute Corp.LtdLatestSes Clotades by Marià CastellóSes Clotades by Marià Castelló Random Jobs Submit your jobAll jobs »Jobs Post positions» Sort by districtsAll|Northern China|Middle China|Southern China