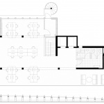
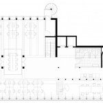
Restructuring and Vertical Extension on Rue du Docteur Finlay by Atelier Quinze VingtsCombine Parisian Heritage with Lightweight Construction 2025-11-14 Project SpecsDesign:Atelier Quinze VingtsLocation: France Type: Architecture Materials: Wood Steel Concrete Coating Glass Tags: Paris Renovation Category: Office Office Building Commercial Architecture Roof Garden 版权️©谷德设计网gooood.cn,禁止以gooood编辑版本进行任何形式转载Copyright©goooodClick to contact with the designer/authorAtelier Quinze VingtsRecommended Jobs Submit a JobAll Jobs »Latest Jobs Submit a JobAll Jobs » Post a Comment You need to login to post comment Social LoginPreviousGolden Omakase Extension by atelier TUOGolden Omakase Extension by atelier TUONextCivic Vision Exhibition by Foster + PartnersCivic Vision Exhibition by Foster + PartnersLatestQinling Museum by Central-South Architectural Design Institute Co., LtdQinling Museum by Central-South Architectural Design Institute Co., Ltd Random Jobs Submit your jobAll jobs »Jobs Post positions» Sort by districtsAll|Northern China|Middle China|Southern China