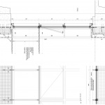
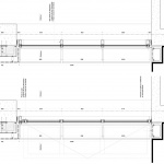
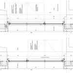
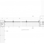
Anne Frank Middle School Rehabilitation by MARS ArchitectesRenewing the Spirit of the Building 2026-03-06 Project SpecsDesign:MARS ArchitectesLocation: France Type: Architecture Materials: Stone Wood Metal Concrete Glass Tags: Antony Renovation Category: Middle School Teaching Buildings Educational Architecture 版权️©谷德设计网gooood.cn,禁止以gooood编辑版本进行任何形式转载Copyright©goooodClick to contact with the designer/authorMARS ArchitectesFranceRecommended Jobs Submit a JobAll Jobs »Latest Jobs Submit a JobAll Jobs » Post a Comment You need to login to post comment Social LoginPreviousNew Nursery School by Studio Associato di Architettura LERUANew Nursery School by Studio Associato di Architettura LERUANext The Hub: the Oval Partnership’s New Office Exemplifies the New-Generation Innovation Space The Hub: the Oval Partnership’s New Office Exemplifies the New-Generation Innovation SpaceLatestThe EUmies Awards Days 2026 celebrate the best of European architecture in Barcelona with a programme focused on reuse and transformationThe EUmies Awards Days 2026 celebrate the best of European architecture in Barcelona with a programme focused on reuse and transformation Random Jobs Submit your jobAll jobs »Jobs Post positions» Sort by districtsAll|Northern China|Middle China|Southern China